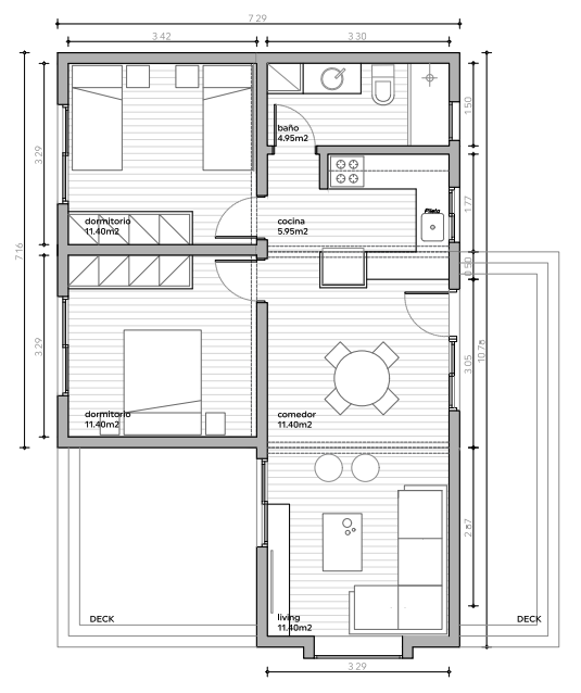
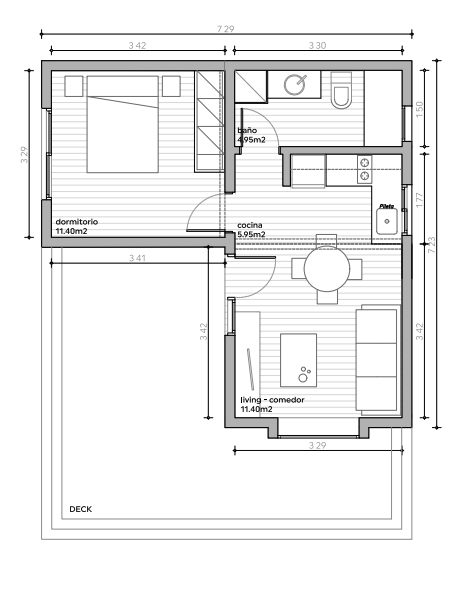
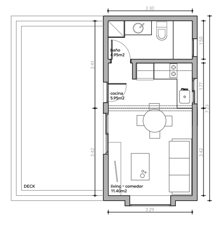
Nuestros Modelos
Explora nuestra gama completa de construcciones modulares. Cada modelo está diseñado para adaptarse a diferentes necesidades y espacios.
¿No encuentras lo que buscas?
Personaliza tu construcción modular paso a paso con nuestro paso a paso de construcción
Construir mi espacio



